アイランドシティオーシャン&フォレストタワーレジデンスEAST

2月16日 値下げ

11,350万円

福岡県福岡市東区香椎照葉6丁目

西鉄貝塚線「香椎花園前」駅徒歩30分

西鉄貝塚線「唐の原」駅徒歩43分

鹿児島本線「九産大前」駅徒歩41分

価格
11,350万円
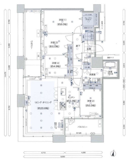
間取り
4LDK
向き
所在地
福岡県福岡市東区香椎照葉6丁目
交通

西鉄貝塚線香椎花園前」駅 徒歩30分

西鉄貝塚線唐の原」駅 徒歩43分

鹿児島本線九産大前」駅 徒歩41分

専有面積
105.54㎡
築年月
2024年1月(築2年)

物件の特徴

  • バストイレ別

  • 室内洗濯機置場

  • TVモニタ付きインターホン

  • カウンターキッチン

  • 独立洗面台

  • 浴室乾燥機

  • オートロック

  • エレベーター

セールスポイント

#積水ハウスと世界的デザイナーが手掛けた高層ツインタワー
#37階から見る眺望は見ものです
#自然と調和するアイランドシティのランドマーク
#荘厳な姿勢を備えた木々から始まるエントランス
#免震×制振のハイブリッド構造

ポイント

照葉はばたき小学校 バス停近く 未入居 オートロック ペット可 

担当者のコメント

安原 駿介

リビングやバルコニーからの眺望がとても素敵なお部屋です。マンション内は設備が充実しており季節の寒暖や天候に左右されること無くゆったり過ごせます。

基本情報

管理費
16,900円
修繕積立金
12,700円
修繕積立基金
-
間取り / 詳細
4LDK
向き
専有面積
105.54㎡
バルコニー面積
12.98㎡
その他面積
-
-
-
所在階 / 階建て
37階 / 48階建
建物構造
鉄筋コンクリート
築年月
2024年1月(築2年)
種別
中古マンション
駐車場 / 月額
空有 / 11,000円 (税込)
土地権利
所有権
土地
(敷金 / 保証金)
- / -
国土法届出要否
不要
接道状況
-
用途地域
第二種住居
地勢
-
都市計画
市街化区域
現況
空家
引渡し
即時
取引態様
一般媒介
棟総戸数
310戸
管理形態
管理会社に全部委託
管理会社 /
管理組合有無
積水ハウスGMパートナーズ九州 / 有
取引条件の
有効期限
2026年03月23日

設備条件

設備条件
  • ペット相談 / デザイナーズ / 室内洗濯機置場 / フローリング / バルコニー / 都市ガス / 公営水道 / 公共下水 / エレベーター / 電気有 / 2面バルコニー / 駐輪場 / 免震構造 / ガスコンロ / コンロ2口以上 / 食器洗い乾燥機 / システムキッチン / カウンターキッチン / ディスポーザー / コンロ3口 / バス・トイレ別 / 追焚機能浴室 / 浴室乾燥機 / 温水洗浄便座 / 洗面台 / 洗髪洗面化粧台 / 独立洗面台 / 床暖房 / オートロック / TVモニタ付インターホン / 宅配ボックス / 防犯カメラ / 24時間有人管理 / 24時間ゴミ出し可 / コンシェルジュサービス
設備(その他)
    -

その他

物件番号
97838569
管理コード
建築確認番号
-
情報更新日
2026年03月09日
次回更新予定日
2026年03月23日
取扱会社
  • 福岡不動産研究所株式会社
  • 福岡県福岡市博多区山王1丁目18-21 
  • TEL:092-433-3320
  • 福岡県知事 (1) 第19620号
    住宅ローンアドバイザー(住宅金融普及協会)
    宅地建物取引士(国土交通省)
  • 公益社団法人 福岡県宅地建物取引業協会会員
    一般社団法人 九州不動産構成取引協議会加盟店
    一般財団法人 住宅金融普及協会
備考

『福岡不動産研究所のここが知りたいQ&A』

Q室内の状態は?
A目立った傷や汚れは無くハウスクリーニングのみでそのまま気持ちよくスタートできます。

Q駐車場はある?
A敷地内駐車場は1住戸1台確保可能です。月額7000~19000円です。

Q管理の状況は?
Aコンシェルジュがいるのでセキュリティ面はもちろん便利なサービスも受けられます。共用部分にこだわりがあり2階にはワーキングスペース、27階にはゲストルーム、28階には最新の機器を揃えたフィットネスジム、47階にはイタリアのプレミアムブランド、カッシーナとのコラボレーションによるインテリアや圧倒的な眺望を満喫できるスカイラウンジやバーベキュースペースがあります。

周辺施設

  • ファミリーマート 福岡香椎照葉四丁目店の画像

    コンビニエンスストア

    ファミリーマート 福岡香椎照葉四丁目店

    344m(5分)

  • 照葉けいあい保育園の画像

    保育園

    照葉けいあい保育園

    396m(5分)

  • 福岡市立照葉中学校の画像

    中学校

    福岡市立照葉中学校

    409m(6分)

  • ツルハドラッグ アイランドシティ店の画像

    ドラッグストア

    ツルハドラッグ アイランドシティ店

    454m(6分)

  • アイランドシティ中央公園の画像

    公園

    アイランドシティ中央公園

    481m(7分)

  • フードウェイアイランドアイ照葉店の画像

    スーパー

    フードウェイアイランドアイ照葉店

    517m(7分)

  • にしてつストアレガネットマルシェ香椎照葉の画像

    スーパー

    にしてつストアレガネットマルシェ香椎照葉

    636m(8分)

  • 香椎照葉幼稚園の画像

    幼稚園

    香椎照葉幼稚園

    672m(9分)

  • 福岡市立照葉はばたき小学校の画像

    小学校

    福岡市立照葉はばたき小学校

    756m(10分)

  • Seria(セリア) アイランドアイ店の画像

    その他

    Seria(セリア) アイランドアイ店

    839m(11分)

  • まえだクリニックの画像

    内科

    まえだクリニック

    1104m(14分)

支払いシミュレーション

月々の支払額
購入希望物件価格
万円
頭金
万円
金利
%
返済額(ボーナス1回分)
万円
返済期間

※ボーナスは自動で年2回分で計算されます。

近隣の物件

  1. 藤和シティコープ和白

    福岡市東区和白5丁目

    3LDK (68.06㎡)

    2,490万円

  2. サントノーレ福岡東

    福岡市東区名子3丁目

    4LDK (100.25㎡)

    2,960万円

  3. ロワールマンション青葉WEST

    福岡市東区青葉7丁目

    2LDK (68.04㎡)

    2,290万円

  4. エバーライフ香椎第2

    福岡市東区香椎駅前1丁目

    3LDK (74.77㎡)

    1,890万円

よく見られている物件

  1. 長丘西公園ハウス

    福岡市南区長丘5丁目

    3LDK (79.92㎡)

    1,280万円

  2. パークアソシア大野城駅前

    大野城市白木原2丁目

    3LDK+S(納戸) (70.51㎡)

    4,398万円

  3. LANDIC STUDIO 博多

    福岡市博多区美野島3丁目

    1LDK (31.52㎡)

    2,450万円

  4. アンピール教育大前

    宗像市赤間4丁目

    3LDK (69.60㎡)

    2,190万円

アイランドシティオーシャン&フォレストタワーレジデンスEAST

アイランドシティオーシャン&フォレストタワーレジデンスEAST

11,350万円

16,900円

4LDK(105.54㎡)

お気軽にお問い合わせください

LINEからお問い合わせ 無料お問い合わせ

福岡不動産研究所株式会社

092-433-3320

10:00~18:00

(休:水曜日)