【居間・リビング】
- 価格
- 2,599万円
- 間取り
- 3LDK
- 土地面積
- 173.19㎡
- 建物面積
- 84.04㎡
- 築年月
- 1984年12月(築41年)
-
バストイレ別
-
室内洗濯機置場
-
TVモニタ付きインターホン
-
カウンターキッチン
-
独立洗面台
-
浴室乾燥機

キッチン
洗面所
洋室
バルコニー- 販売戸数
- -
- 総戸数
- -
- 間取り / 詳細
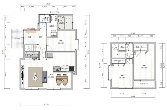
- 3LDK
LDK 18.0帖/洋室 5.2帖/洋室 5.2帖/洋室 6.5帖 - 向き
- -
- 建物面積(坪数)
- 84.04㎡(25.42坪)
- 土地面積(坪数)
- 173.19㎡(52.38坪)
- 建ぺい率 /
容積率 - 60%/150%
- 築年月
- 1984年12月(築41年)
- 駐車場 / 月額
- 有(屋根有) / 0円
- 土地権利
- 所有権
- 土地
(敷金 / 保証金) - - / -
- 建物構造
- 木造 / 2階建
- 傾斜地部分面積
- -
- 路地状敷地
- -
- 私道負担面積
- -
- セットバック
- 記載なし
- 高圧線下面積
- -
- 施工会社
- -
- 用途地域
- 第一種中高層住居専用
- 地目 / 地勢
- - / -
- 接道状況
- -(北西 公道 4.0m)
- 国土法届出要否
- 不要
- 都市計画
- 市街化区域
- 総区画数 /
販売区画数 - -/-
- 現況
- 空家
- その他
法令上の制限 - -
- 取引態様
- 一般媒介
- 引渡し
- 即時
- リフォーム
-
-
2022年10月
キッチン 浴室 トイレ 壁 床 全室
2022年10月
外壁 屋根 外壁塗装 屋根洗浄(陶器瓦) - 取引条件の
有効期限 - 2026年03月23日
- 設備条件
-
- 閑静な住宅地 / リフォーム済 / 室内洗濯機置場 / フローリング / バルコニー / プロパンガス / 公営水道 / 公共下水 / 電気有 / ガスコンロ / コンロ2口以上 / 食器洗い乾燥機 / システムキッチン / カウンターキッチン / コンロ3口 / バス・トイレ別 / 浴室乾燥機 / 温水洗浄便座 / 洗面台 / 洗髪洗面化粧台 / 独立洗面台 / TVモニタ付インターホン
- 設備(その他)
-
-
-
- 物件番号
- 88105553
- 管理コード
- SH
- 建築確認番号
- -
- 情報更新日
- 2026年03月09日
- 次回更新予定日
- 2026年03月23日
- 取扱会社
-
- 福岡不動産研究所株式会社
- 福岡県福岡市博多区山王1丁目18-21
- TEL:092-433-3320
- 福岡県知事 (1) 第19620号
住宅ローンアドバイザー(住宅金融普及協会)
宅地建物取引士(国土交通省) - 公益社団法人 福岡県宅地建物取引業協会会員
一般社団法人 九州不動産構成取引協議会加盟店
一般財団法人 住宅金融普及協会
- 備考
『福岡不動産研究所のここが知りたいQ&A』
Q室内の状態は?
A リフォームしているので綺麗な内装状態です。リビングにはワーキングスペースがあり在宅勤務等にもご使用できます。日当たりも良いのでゆったと過ごせる室内です。
Q周辺環境は?
A スーパーやドラッグストア等の買い物施設は近くお買い物には困りません。小学校や中学校も近いため安心して見送ることができます。最寄りの春日駅まで徒歩では19分かかりますが自転車では10分以内の距離なので移動も便利です。
Q駐車場には何台とめれる?
A 駐車場には縦列で2台駐車可能です。※車種によっては駐車がしにくい場合もあります。
-
内科
藤崎内科・循環器科医院
304m(4分)
-
コンビニエンスストア
ファミリーマート 春日若葉台東3丁目店
334m(5分)
-
中学校
春日市立春日東中学校
353m(5分)
-
保育園
春日どろんこ保育園
535m(7分)
-
幼稚園
くすの木幼稚園
590m(8分)
-
スーパー
サニーちくし台店
613m(8分)
-
郵便局
春日ちくし台郵便局
695m(9分)
-
図書館
春日市民図書館
746m(10分)
-
小学校
春日東小学校
917m(12分)
-
ドラッグストア
ドラッグストア マツモトキヨシ 宝町店
1047m(14分)
- 月々の支払額
- 円
- 購入希望物件価格
-
万円
- 頭金
-
万円
- 金利
-
%
- 返済額(ボーナス1回分)
-
万円
- 返済期間
-
年
物件の特徴
セールスポイント
#住宅あんしん保証による建物状況調査済み
#耐震補強工事実施済み
#子育てのしやすい周辺環境
#未掲載写真やROOMTOUR動画を当社HPにて公開中
ポイント
担当者のコメント
パノラマ画像
基本情報
設備条件
その他
周辺施設
支払いシミュレーション
※ボーナスは自動で年2回分で計算されます。
近隣の物件
よく見られている物件
春日市若葉台西4丁目 戸建て
2,599万円
-
3LDK(84.04㎡)
牧野 文宣